Cladire istorica in centrul orasului
Categorie: Case/Vile | ORADEA, Bihor | Tip tranzactie: Vanzare
Descriere
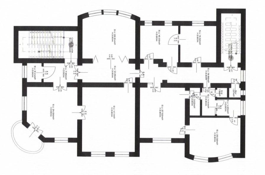
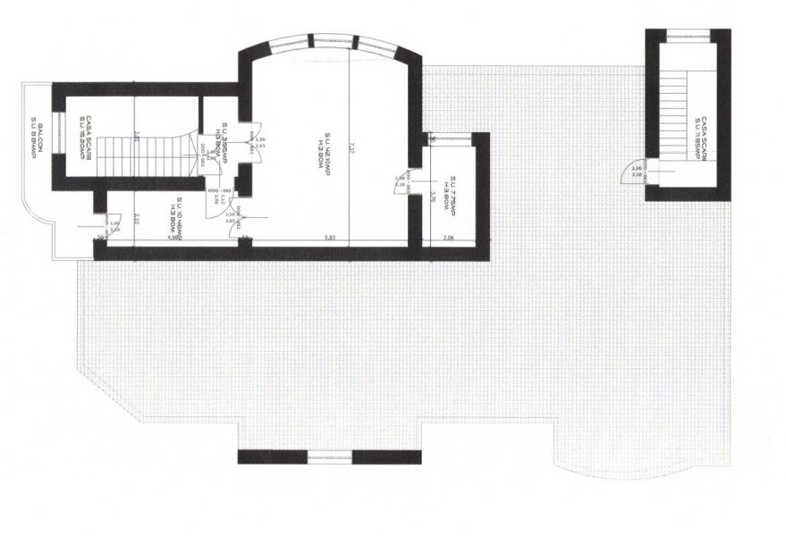
Cladire cu arhitectura deosebita, situata in zona centrala a orasului, pe strada Armatei Romane nr. 16, zona de protectie istorica, dublu front stradal, suprafata construita 1059mp, teren in suprafata de 939mp. Cladirea este compusa din demisol (245.88mp), parter (351.27mp), etaj 1 (343.91mp), etaj 2 (116.97mp) + posibilitate amenajare pod in suprafata de 234.03mp. Cladirea necesia reabilitare si este ideala pentru desfasurarea oricaror activitati economice, birouri, turism, etc.
- Localitate: ORADEA
- Zona: Strada Armatei Romane nr. 16
- Tip tranzactie: Vanzare
- Nr. camere: 16
- Nr. bai: 8
- Compartimentare: Decomandat
- Pret (EURO): 1850000
- Suprafata utila: 850
- Front stradal: 22 +18 m.l.
- Etaj: D+P+E1+E2
- Nr. etaje: 4
Localizare pe Harta
Date de Contact
Valentin Catana este un lider recunoscut în domeniul imobiliar, cu o vastă experiență de peste 22 de ani și tranzacții în valoare de peste 100.000.000 de Euro la activ. Specializat în particular pe segmentul de proprietăți comerciale și investiții imobiliare, Valentin a dovedit o abilitate remarcabilă de a genera randamente constante de peste 10% pe an pentru clienții săi, confirmându-și astfel statutul de expert în domeniu. Educația sa solidă, cu studii în Inginerie Economică și Arhitectură, îi oferă o perspectivă unică asupra pieței imobiliare, combinând expertiza tehnică cu cea financiară pentru a identifica cele mai profitabile oportunități de investiții pentru clienții săi. Mai mult decât atât, Valentin Catana este motorul din spatele succesului Agenției Imobiliare Casa Regal, unde activează de peste 20 de ani. În calitate de conducător al echipei, a demonstrat abilități de leadership excepționale, gestionând cu succes dezvoltarea și consolidarea companiei pe piața imobiliară. Dedicația sa neobosită, cunoștințele aprofundate și capacitatea sa de a obține rezultate impresionante în mod constant fac din Valentin Catana un adevărat maestru al domeniului imobiliar. În calitate de lider al uneia dintre cele mai respectate agenții imobiliare, Valentin se angajează să mențină Casa Regal în avangarda pieței imobiliare, oferindu-le clienților cele mai bune oportunități de investiții și servicii de cea mai înaltă calitate.
